ItalianoEnglish
1 Bagni 1 Box/Posti auto 83 m2
Caratteristiche principali
Codice
V001933
Prezzo
246.000,00 EUR
Spese condominiali
1.500,00 EUR
Classe
F (246)
Locali
3
Altre caratteristiche e accessori
Stato Immobile
Ristrutturato
Grado
Medio
Panorama
Vista Aperta
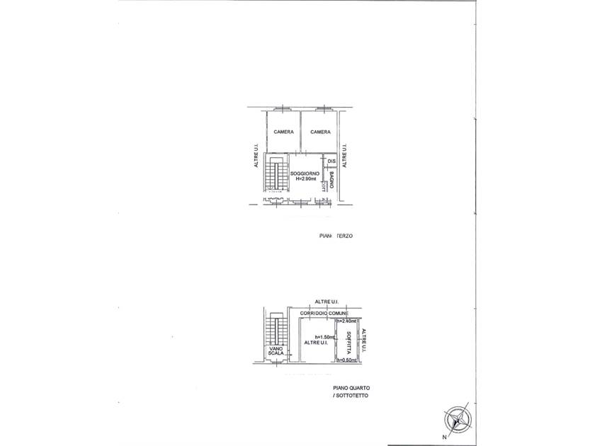
Piano
Terzo
Orientamento
Nord Ovest Sud Est
Totale Piani
Tre
Lati Liberi
2
Giardino
No
Arredi
Possibilità
Tipo Soggiorno
Soggiorno
Tipo Cucina
A Vista
Riscaldamento
Centralizzato
Tipo Riscaldam.
Termo valvole
Tipo Impianto
Radiatori
Fonte Energetica
Metano
Acqua Calda
Autonoma
Raffrescamento
Split
Infissi
Metallo Doppio Vetro
Serramenti
Buono
Persiana
Tapparella PVC
Pavim. Giorno
Parquet
Pavim. Notte
Parquet
Pavim. Cucina
Parquet
Pavim. Bagno
Gres Porcellanato
Cantina - Solaio
Entrambe
Accesso Disabili
No
Accessori
Aria Condizionata, Doppi Vetri, Fibra Ottica, Filo Diffusione, Passaggio Automobilistico, Passaggio Pedonale, Porta Blindata, Rete Dati, Zanzariere
Posto in MOLTO VIVIBILE quartiere CIRCONDATO da SERVIZI di PRIMA NECESSITA' quali ATTIVITA' COMMERCIALI, diverse e ESTESE AREE VERDI come il PARCO TRENNO, MEZZI PUBBLICI. e SCUOLE. SI COMPLETA di PARCHEGGIO CONDOMINIALE, CANTINA E SOLAIO
Cookie preference